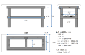
居間に余っている木製ベンチの板を使って、作業机を設計してみました。
2x4もこれだけあるとセダンに入りきらないなぁ・・・・
徐々に買い揃えることにします。

PS.1668mmは設計ミスですねぇ。2x4の38mmx2を計算に入れませんでした。あと4x4の予定が90mm(実際は91mm)の部材に成ったので、1668mmじゃなくて1562mmです。というか、勘違いのまま計算すると1642mmですね・・・CADが必要かも。
PS. 4x4なんていう木材はないですね。そもそも2x4材は壁工法なので、柱用っていうのはないんですね。仕方がないので杉材(多分)の90x90を調達しました。重すぎ。

PS2. 中間に設置する棚板は、設計図では2x4にしていますが、厚みは不要なので1x4にしたいと思います。しかし1x4の他にも、1x6とか1x10とか1x12とかもあるんだよねぇ。このサイズの板の実際の幅は整数倍ではないので混乱しちゃいます。一番安いのでいいかなぁ。
PS3. 2x4材のサイズの起源は、大恐慌時代に、本当はインチサイズなのに短いサイズでごまかしたことにあるようです。しかしいくら短くしたと言っても、せめて表記通りに整数倍にしてほしいわ。ほんと。
コーススレッドは、(重り用途で)59mmをたくさん買ったので、2x4材の短辺は止められるのですが、長辺は止められません。そこで120mmのコーススレッドを買ってみました。しかしこの長いコーススレッド、多分相当なトルクがないと打込めません。対策は別途打たないと。

2x4もこれだけあるとセダンに入りきらないなぁ・・・・
徐々に買い揃えることにします。

PS.1668mmは設計ミスですねぇ。2x4の38mmx2を計算に入れませんでした。あと4x4の予定が90mm(実際は91mm)の部材に成ったので、1668mmじゃなくて1562mmです。というか、勘違いのまま計算すると1642mmですね・・・CADが必要かも。
PS. 4x4なんていう木材はないですね。そもそも2x4材は壁工法なので、柱用っていうのはないんですね。仕方がないので杉材(多分)の90x90を調達しました。重すぎ。

PS2. 中間に設置する棚板は、設計図では2x4にしていますが、厚みは不要なので1x4にしたいと思います。しかし1x4の他にも、1x6とか1x10とか1x12とかもあるんだよねぇ。このサイズの板の実際の幅は整数倍ではないので混乱しちゃいます。一番安いのでいいかなぁ。
PS3. 2x4材のサイズの起源は、大恐慌時代に、本当はインチサイズなのに短いサイズでごまかしたことにあるようです。しかしいくら短くしたと言っても、せめて表記通りに整数倍にしてほしいわ。ほんと。
コーススレッドは、(重り用途で)59mmをたくさん買ったので、2x4材の短辺は止められるのですが、長辺は止められません。そこで120mmのコーススレッドを買ってみました。しかしこの長いコーススレッド、多分相当なトルクがないと打込めません。対策は別途打たないと。

0 件のコメント:
コメントを投稿